O-20 project cover

O-20

ClientPrivate
Project typeResidential
Total Area180m² (Net Area)
LocationAntalya, Turkey
Scope of WorkConcept Design, Construction Documentation, Contract Administration
Project DurationSeptember 2022 - June 2023
Project StatusCompleted

Project Description

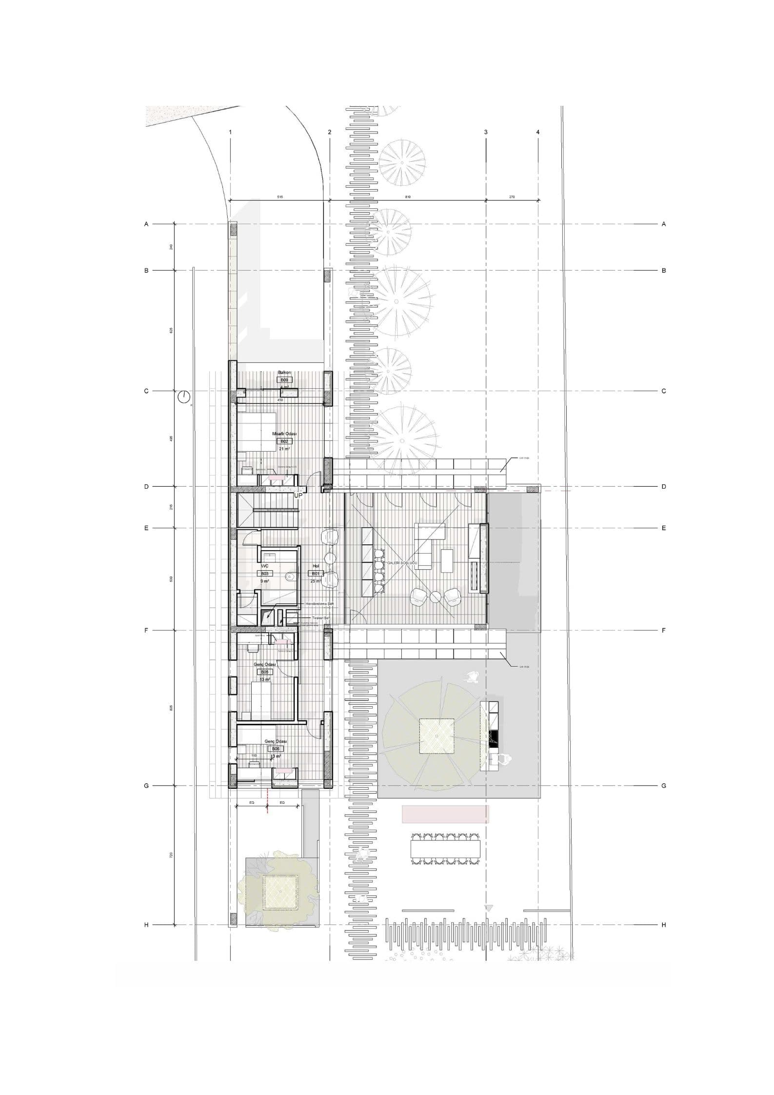
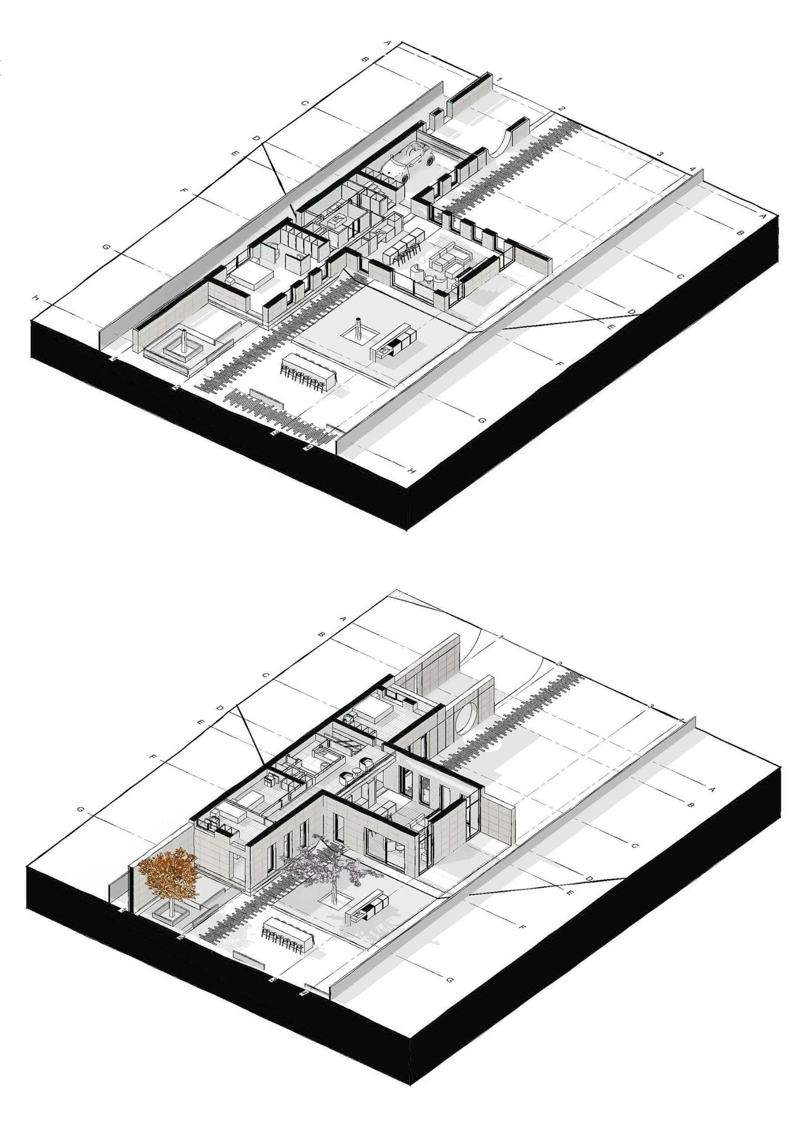
O-20 Cottage is a residential project located in Antalya, developed with a focus on adapting the design to the specific characteristics of the site. The planning process began with a detailed site analysis, shaping the building orientation, massing, and spatial organization based on environmental factors such as sunlight, prevailing winds, and topography. The layout emphasizes functional zoning, natural light access, and direct relationships between interior spaces and outdoor areas.

The project progressed from initial concept sketches to full construction documentation through close collaboration with MEP and structural teams. Client consultations played a key role throughout the design development, ensuring that spatial solutions aligned with specific needs and expectations. During the construction phase, architectural consultancy services were provided to maintain design consistency and address site-specific conditions. O-20 Cottage reflects a straightforward approach to residential design, where simplicity, functionality, and environmental responsiveness are prioritized without unnecessary complexity.