Scientific Research Centre project cover

Scientific Research Centre

Project typeEducational
Total Area3216 m² (Net Area)
LocationAnkara, Turkey
Scope of WorkConcept Design, Competition
Project DurationSeptember 2017 - December 2018
Project StatusDesign Proposal

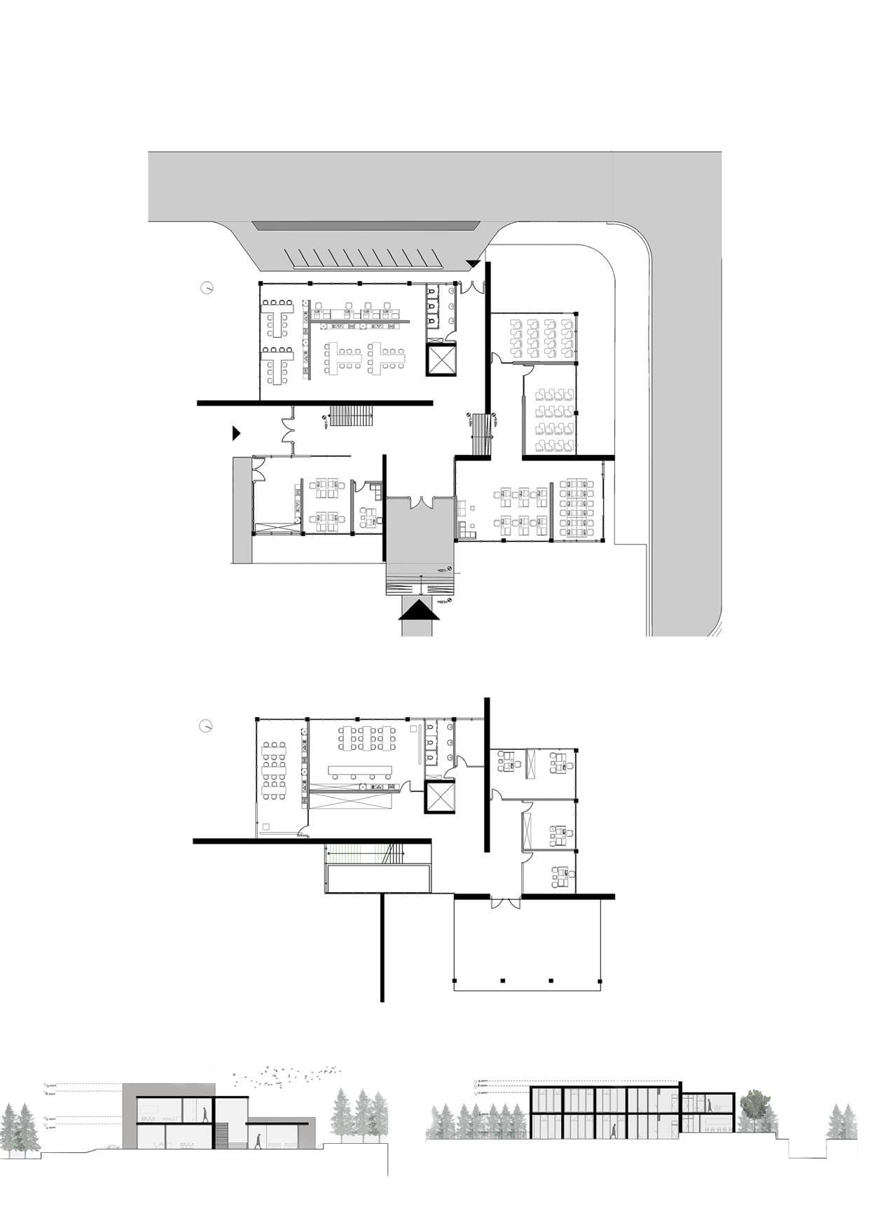
Project Description

The Scientific Research Centre is located at METU-Incek in Ankara and is designed to support the production of new scientific knowledge, a fundamental merit of contemporary societies. Acknowledging the wide-reaching impacts of scientific advances, the center provides spaces for both theoretical study and experimental work. The project aims to establish an academic environment that fosters interdisciplinary research while responding to the increasing national and international demand for scientific innovation.

The spatial program consists of a central library building and three specialized research buildings focused on physics, chemistry, and biology. Each research building is intended to develop its own internal spatial strategy based on its specific area of inquiry. The design emphasizes creating suitable environments for concentrated academic work while maintaining coherence between the various disciplines. Through this approach, the Scientific Research Centre aspires to contribute meaningfully to the advancement of science across multiple fields.